Della Township
Dallas Masterplan

ARCHITECTURAL DESIGNS Dallas Masterplan

Transforming Urban Life: A New Mixed-Use Complex Prioritises Pedestrian Experience

Designed By:
Danny Forster

Location:
New York
Category:
Architectural Designs
Area:
14 Acre
Dallas Masterplan

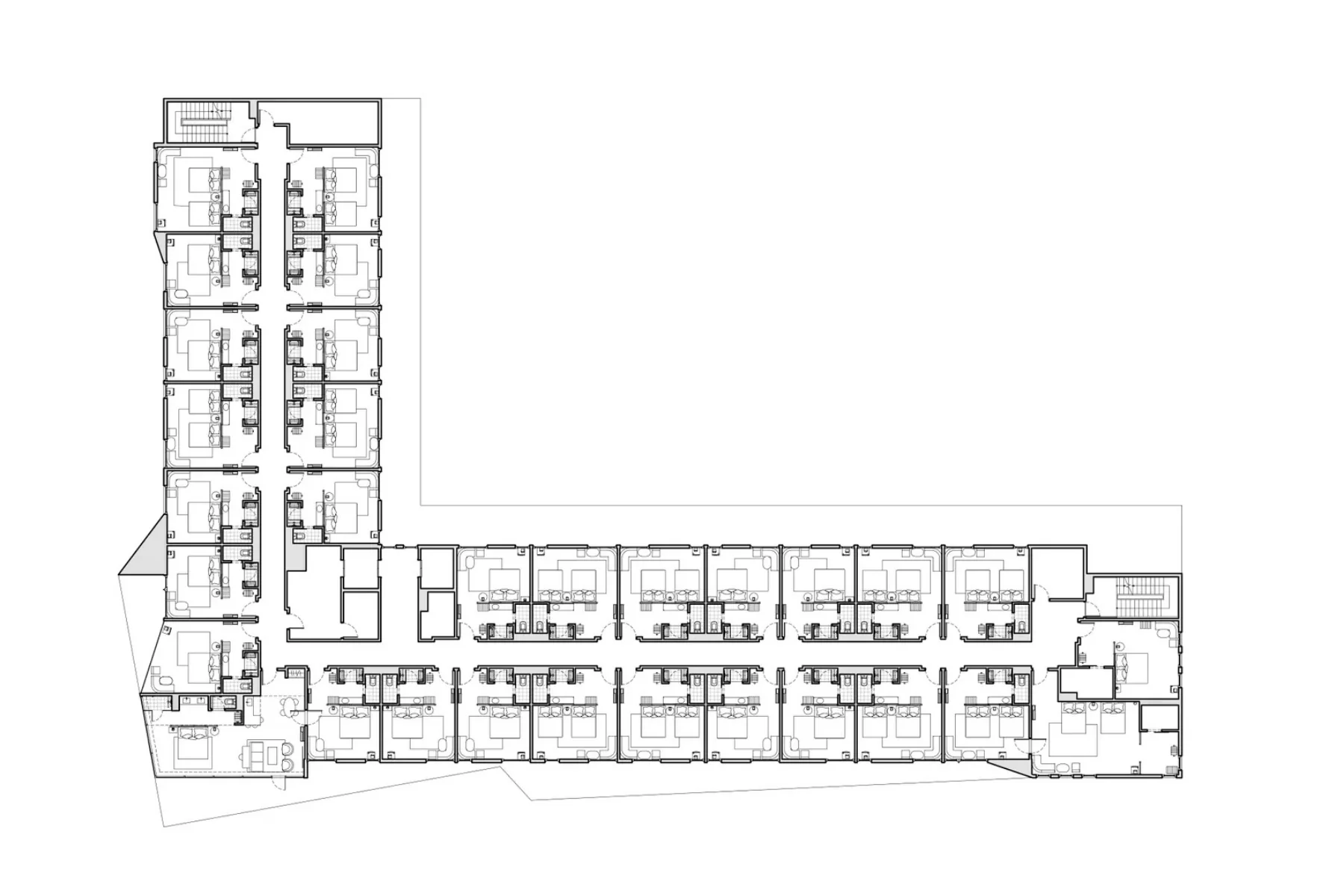
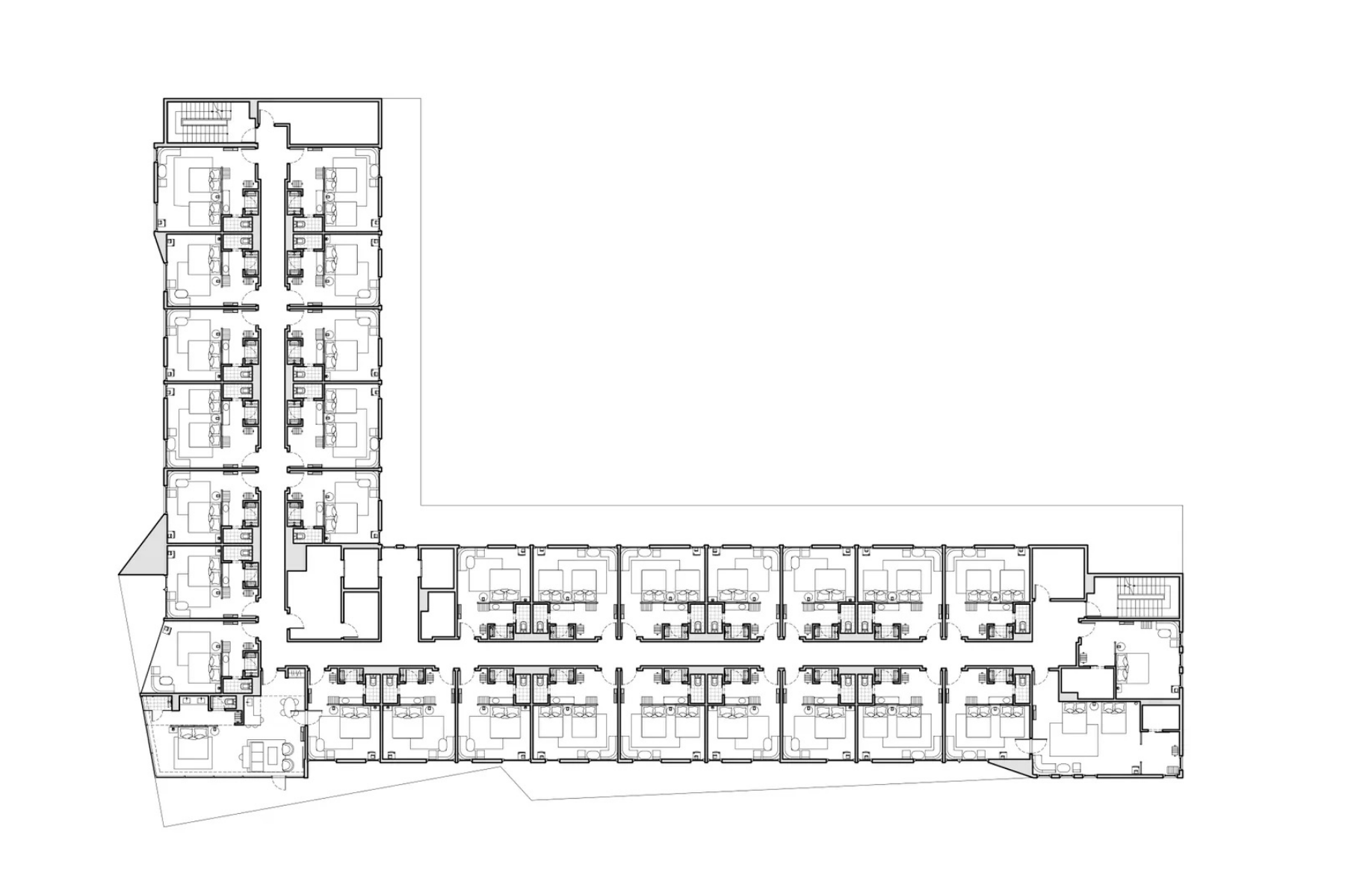
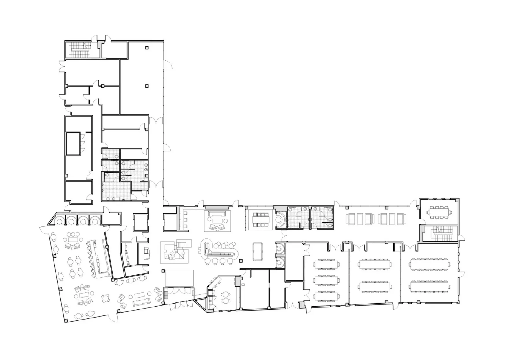
Dallas, Texas, known for its car dependency, is transforming with the Dallas Alpha West mixed-use complex, designed by DF&A to prioritize pedestrians. Embracing the Dutch woonerf concept, the 14-acre plaza invites walking as a relief from the car-centric culture.

The complex, anchored by a specific hotel brand, features an office building with wood-clad, tiered balconies that echo the hotel’s design. Inspired by coworking culture, the inviting lobby fosters collaboration, moving beyond traditional office spaces.

Be part of a once-in-a-lifetime opportunity by invitation only. Own, invest, or partner in the iconic Della Township, where luxury, wellness, and legacy come together.

Enquire now