Della Township
Rithm Capital

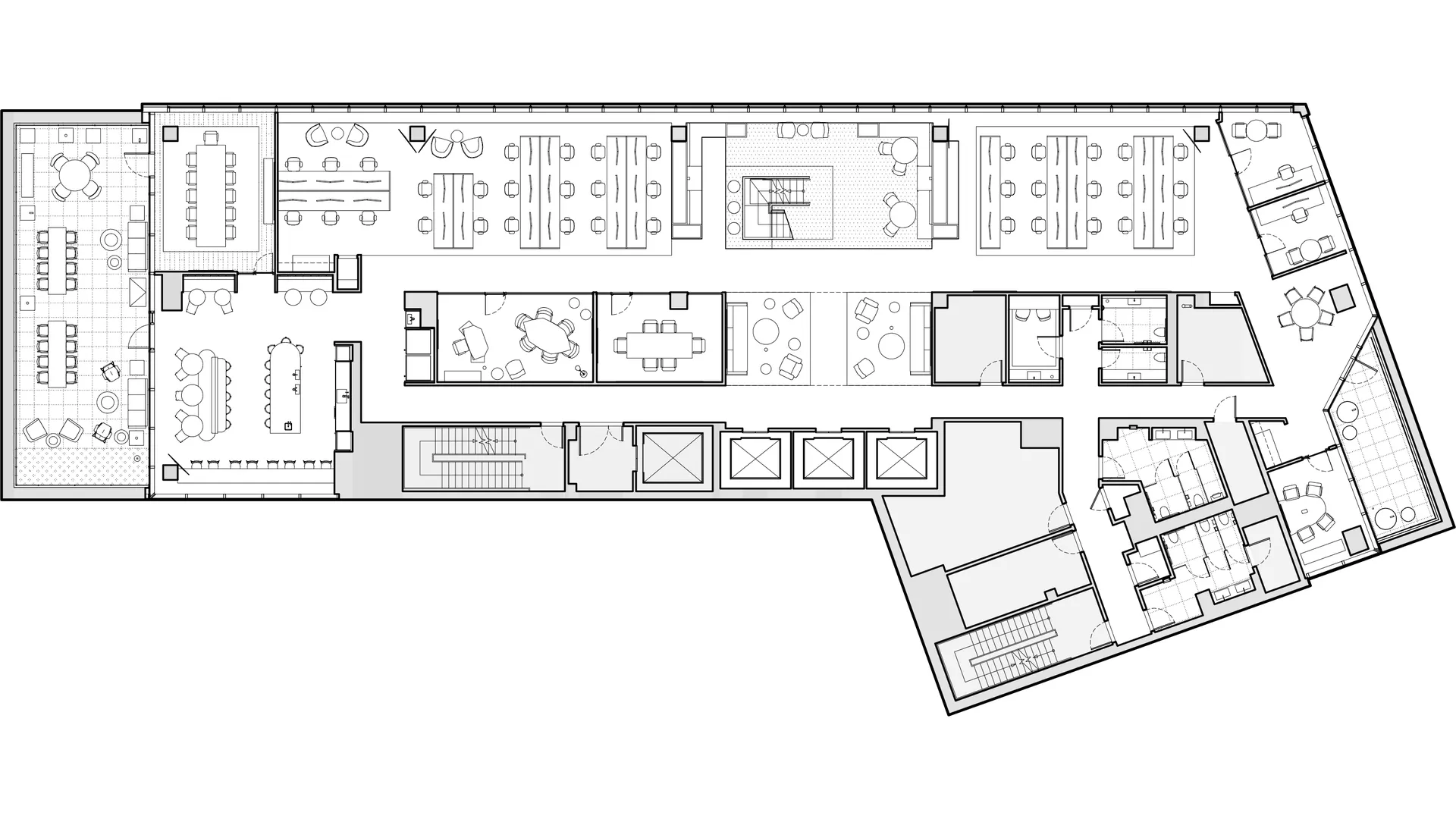
OFFICE INTERIORS Rithm Capital

Sculptural Elegance in the Workplace that Inspires Collaboration and Creativity

Designed By:
Danny Forster

Location:
New York
Category:
Office Interiors
Rithm Capital

When Rithm Capital hired Danny to design their new offices, they saw two main challenges: achieving spatial coherence across two floors and encouraging employees to return post-Covid. To bridge the gap between the floors, Danny created a dynamic central wooden stair that not only connects the spaces but also serves as a striking focal point.

Be part of a once-in-a-lifetime opportunity by invitation only. Own, invest, or partner in the iconic Della Township, where luxury, wellness, and legacy come together.

Enquire now